Page suivante
Page précédente
Metz (57000)

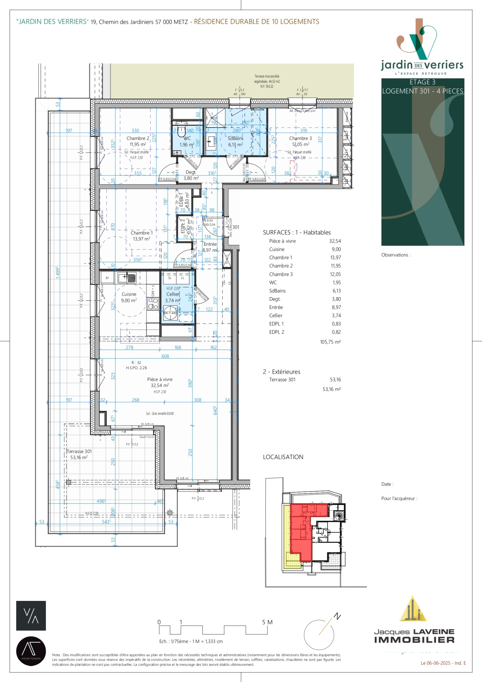
Appartement 5 pièce(s) 3 chambre(s) 105.75 m²

1
Ascenseur
459 880 €
Réf 10494-301

UNIQUE A METZ-SABLON! Dans un quartier prisé à proximité de toutes commodités, au calme en retrait de la circulation, dans résidence de standing neuve à dimension humaine de 10 logements format 4 et 5 pièces, réservez votre appartement 5 pièces en étage, clé en mains, surface bien pensée de + 105m², vaste salon-séjour ouvert sur cuisine avec baies vitrées accès terrasse de 53m² bien orientée, 3 belles chambres, salle de bains, wc individuels, cellier. Prestations de qualité, pompe à chaleur air/eau, chauffage sol, performance énergétique garantie, ascenseur, accès pmr, vmc double flux, panneaux photovoltaîques pour les communs... Plans d'aménagement intérieur modifiables. A découvrir!

Bilan énergétique

Diagnostics énergetiques
Consommation énergétique
A B C D E F G
Emission de gaz à effet de serre
A B C D E F G
DPE non concerné
A propos de ce bien Caractéristiques de ce bien
  • Surface 105,75 m²
  • carrez 105,75 m²
  • séjour 32,54 m²
  • 3 chambre(s)
  • 1 salle(s) de bain
  • cuisine américaine
  • Chauffage individuel : air/eau (pompe à chaleur)
  • exposition Sud-Ouest
  • 1 niveau(x)
  • 3ème étage
  • 4 étage(s)
  • ascenseur
  • terrasse
  • visiophone
  • interphone
  • quartier METZ GARE
  • accès handicapé

Composition

Composition de ce bien

Etage 3

  • entrée 8.97 m²
  • Dégagement 3.80 m²
  • salon/sejour 32.54 m²
  • cuisine 9.00 m²
  • cellier 3.74 m²
  • chambre 13.97 m²
  • chambre 11.95 m²
  • chambre 12.05 m²
  • WC 1.95 m²
  • salle de bain 6.13 m²
  • terrasse 23.81 m²
  • Placards 1.60 m²

Info copro

Copropriété
  • Copropriété Oui
  • Plan de sauvegarde Non
  • Statut du syndic Pas de procédure en cours

Financier

Informations financières
Prix de vente 459 880 € Les honoraires d'agence seront intégralement à la charge du vendeur

Simulation

Calcul des mensualités
* Champs obligatoires
JACQUES LAVEINE IMMOBILIER METZ TRANSACTION Agence